Negozio in vendita

Firenze, Via Madonna della Querce - Cure
€ 83.000
Prezzo aggiornato
2 locali 2 locali
37 Mq 37 Mq
1 bagno 1 bagno

Negozio in vendita

Firenze, Via Madonna della Querce - Cure

Questo immobile dispone di soluzioni frazionate

Descrizione annuncio

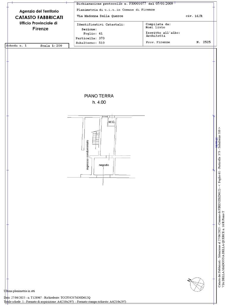
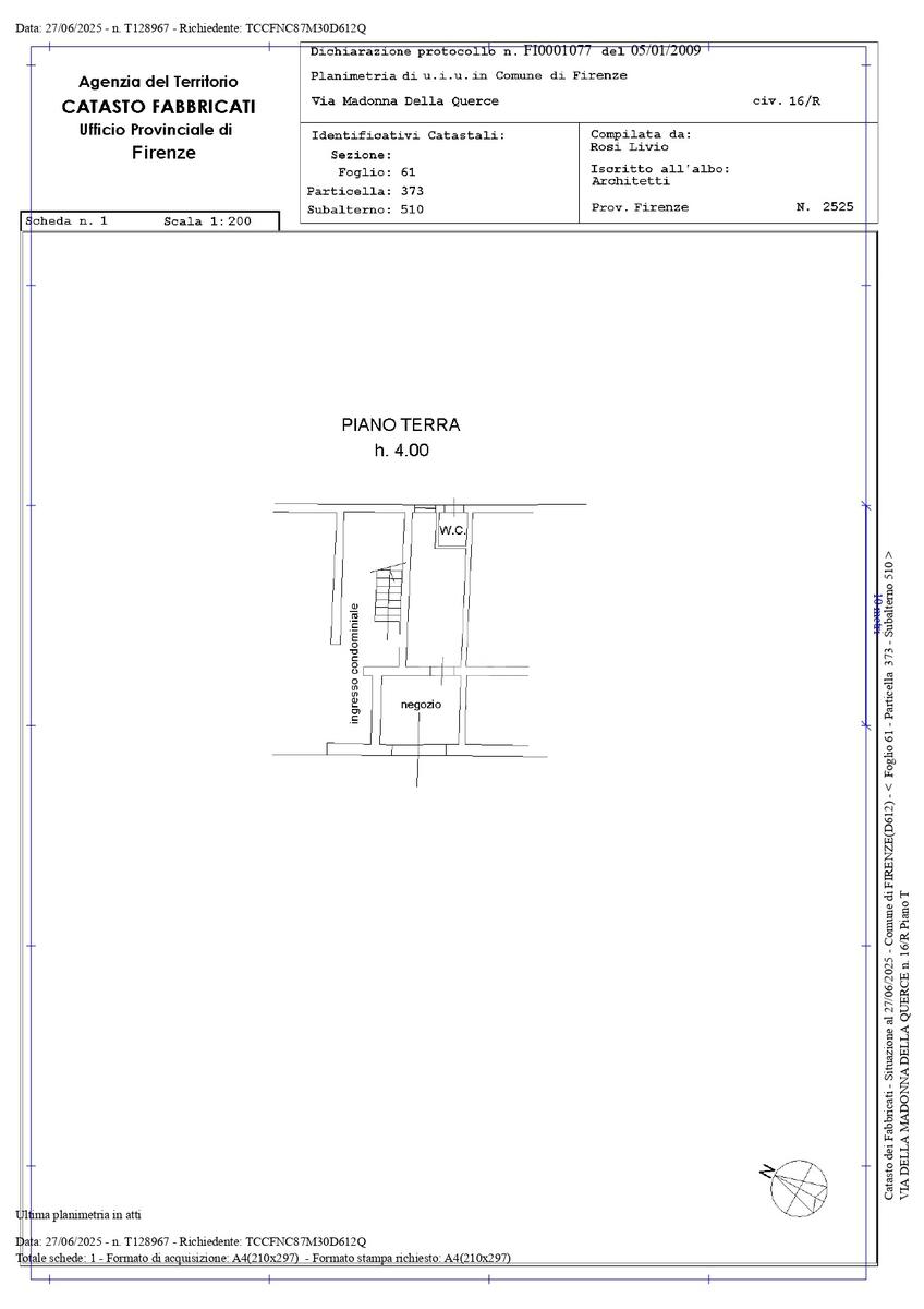
Via Madonna della Querce, zona le Cure, proponiamo la vendita di un grazioso fondo commerciale con sporto su strada di circa 40mq.

L'immobile, posizionato in un buon punto, è composto da un ampio spazio commerciale, un piccolo ripostiglio/magazzino ed un servizio igienico.

Categoria catastale: C/1.

---------------------------------------------------------------------------------------------------------------------

Chiamaci e fissa subito un appuntamento: o manda un'email a tecnocasa - Immobili per l'Impresa è la divisione del Gruppo Tecnocasa specializzata nel settore commerciale, direzionale, logistico ed aziendale. Questa divisione è presente nel territorio di Firenze e provincia dal 2012 e supporta le agenzie Tecnocasa già presenti nel territorio da oltre 20 anni. Gli agenti immobiliari che fanno parte della struttura hanno una formazione tecnica specifica, così da poter offrire ai clienti un servizio altamente specializzato. All'interno dell'agenzia inoltre vengono utilizzati sistemi innovativi dedicati esclusivamente a tutti coloro i quali hanno necessità immobiliari legate al settore. Nello specifico l'agenzia tratta: negozi, magazzini, laboratori, capannoni, depositi oltre a cessioni aziendali quali attività di somministrazione, ricettive e buonuscita. Nel 2013 e nel 2015 l'agenzia affiliata Impresa Firenze s. a. s. risulta essere la migliore agenzia del Gruppo Tecnocasa - settore Immobili per l'Impresa, un traguardo raggiunto grazie all'ottimo servizio di consulenza offerto ai clienti che si sono affidati alla pluriennale esperienza dell'agenzia. Possiedi un immobile commerciale o gestisci un'attività commerciale? Chiamaci e fissa subito un appuntamento: 055.23. 44.354 Ogni agenzia ha un proprio titolare ed e' autonoma - Le presenti informazioni non costituiscono elemento contrattuale.

Mostra tutto

Nelle vicinanze

Trasporto pubblico Trasporto pubblico
stazione di Firenze Campo di Marte
stazione di Firenze Campo di Marte
1,3 Km
stazione di Firenze Statuto
stazione di Firenze Statuto
1,8 Km
Strozzi - Fallaci
Strozzi - Fallaci
1,7 Km
Statuto
Statuto
1,7 Km
Calandrino
Calandrino
70 m
Ricariche auto elettriche Ricariche auto elettriche
Eneldrive (ex SILFI) Piazza delle Cure
250 m
Eneldrive (ex SILFI) Sercambi
350 m
Eneldrive Ataf
400 m
Eneldrive (ex SILFI) Masaccio
540 m
Eneldrive (ex SILFI) Volta
710 m
Scuole Scuole
Scuola Secondaria di Primo Grado "Italo Calvino"
90 m
Scuole
100 m
Scuola dell'Infanzia "Garibaldi"
170 m
Scuola Primaria "Collodi"
220 m
EUI Department of Economics - Villa San Paolo
380 m
Farmacia Farmacia
Farmacia
200 m
Antica Farmacia del Pino
510 m
Farmacia Centostelle
760 m
Farmacity
770 m
Farmacia Donatello
1,1 Km
Ospedali Ospedali
Villa Donatello
1,1 Km
Ospedale di Santa Maria Nuova
1,9 Km
Unità spinale
2,2 Km
Centro traumatologico ortopedico - CTO
2,3 Km
Ospedali
2,3 Km
Supermercati Supermercati
COOP.fi
10 m
Esselunga
530 m
Marguerita Conad
1,1 Km
Penny Market
1,3 Km
Carrefour Express
1,4 Km
Negozi Negozi
Pepita y Grano
160 m
Panificio Pasticceria Pane e Pizzicotti
160 m
La Maglieria di Daisy
170 m
Antica bottega del pane
370 m
OVS
460 m
Bar Bar
Bar
330 m
Chapeau
650 m
Cabaret
650 m
Caffè Marconi
660 m
Bar Caracciolo
690 m
Ristoranti Ristoranti
Osteria I Riffaioli
60 m
Ristoranti
140 m
Boutique della Pasta Fresca
170 m
Re Matto
340 m
Wabi Sabi
520 m
Mostra tutto

Caratteristiche

Rif.:
61070028
Piano:
Terra di 4
Totale piani:
4
Condizionamento:
Autonomo
Ascensore:
No
Riscaldamento:
Autonomo
Mostra tutto
Prezzo Prezzo
€ 83.000
Rata mutuo Rata mutuo
€ 380 / mese
Spese annue Spese annue
€ 180
Proponi il tuo prezzoProponi il tuo prezzo

Altre caratteristiche

Descrizione dei locali
Bagno Cieco

Classe Energetica

G
G
G
G
G
G
G
G
G
EP globale non rinnovabile:
175.00 kW h/m² anno
EP globale rinnovabile:
175.00 kW h/m² anno
EP invernale del fabbricato:
EP estiva del fabbricato:
Anno di costruzione:
1975
Riscaldamento:
Autonomo
Tipo impianto:
A radiatori
Tipo alimentazione:
Altro

Prezzo ridotto di €1 (11%%)

Ti interessa visionare l'immobile?

Fissa un appuntamento  Fissa un appuntamento

Richiedi informazioni

* Questi campi sono obbligatori

Calcola il tuo mutuo

Semplice e senza impegno
Anticipo

( % )
Mutuo

( % )

pochi semplici passi

inserisci i tuoi dati
Questionario completato
Grazie per aver richiesto un appuntamento senza impegno con un nostro Consulente del Credito e Assicurativo.

Hai inserito correttamente tutti i dati necessari e a breve riceverai una e-mail con un link da convalidare per inviare i tuoi dati.
Affiliato
Impresa Firenze Srl
Viale Spartaco Lavagnini, 4A/4B/6A 50121 Firenze (FI)

Il nostro staff


  • Tommaso Birignani
    Affiliato

  • Gherardo Migliori
    Collaboratore

  • Muhamet Yalci
    Collaboratore
Viale Spartaco Lavagnini, 4A/4B/6A 50121 Firenze (FI)
Zona: Firenze Centro - Sud
Mostra su mappa
Orari: lunedì-venerdì 09:00-13:00; 15:30-20:00 - sabato 09:00-13:00
Affiliato
Impresa Firenze Srl
Viale Spartaco Lavagnini, 4A/4B/6A 50121 Firenze (FI)

2025 Tecnocasa Franchising S.p.A. - P. IVA 08365160152 - Via Monte Bianco 60/A 20089 Rozzano (MI). Ogni agenzia ha un proprio titolare ed è autonoma. Privacy policy | Policy utilizzo | Cookie policy