Negozio in affitto

Firenze, Via Vincenzo Gioberti - Gioberti
€ 2.200 / mese
2 locali 2 locali
35 Mq 35 Mq
1 bagno 1 bagno

Negozio in affitto

Firenze, Via Vincenzo Gioberti - Gioberti

Descrizione annuncio

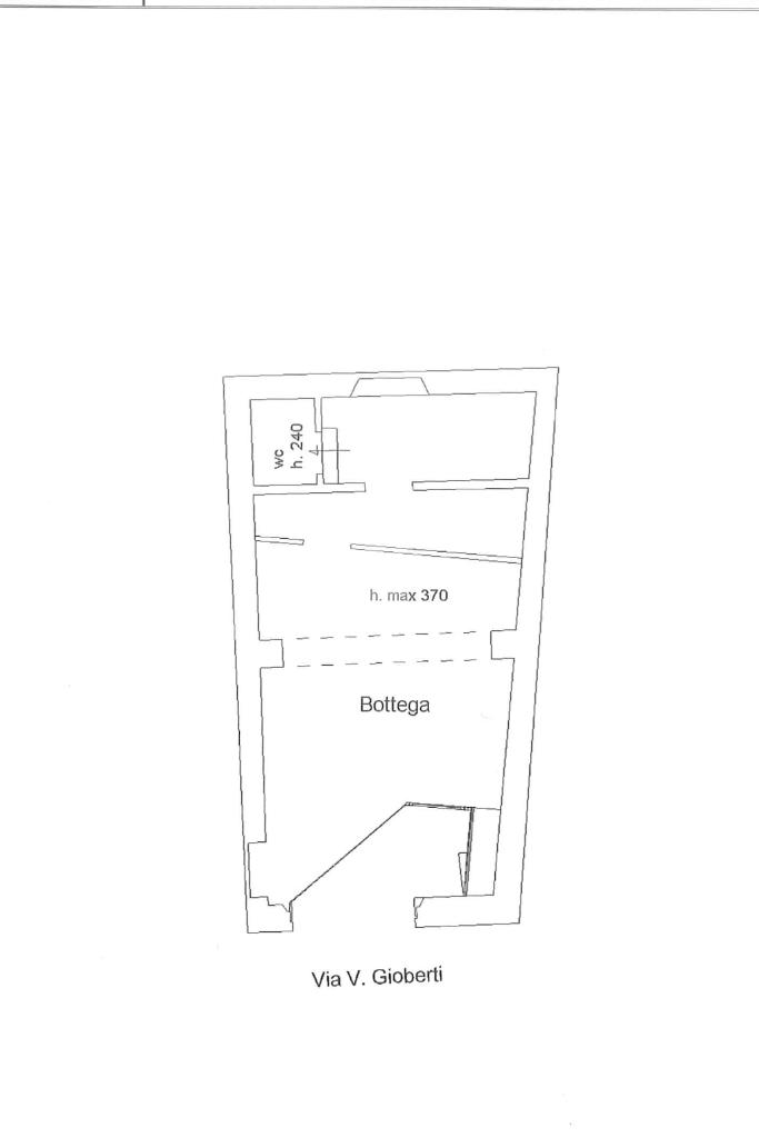
Via Gioberti, in ottima posizione commerciale, proponiamo in affitto un fondo commerciale di 35mq circa.

L'immobile è dotato di sporto su strada che garantisce un'ottima visibilità, un retrobottega e un servizio igienico.

L'immobile è in ottimo stato di manutenzione.

Categoria catastale: C/1.

DISCLAIMER

Ai sensi del vigente Regolamento Europeo GDPR, in materia di privacy, alcuni dati sono censurati, parzialmente o totalmente, o non rappresentativi della realtà.

Le fotografie potrebbero essere immagini di repertorio.

Per avere maggiori informazioni circa documentazione, geoposizionamento, situazione di fatto e di diritto, specifiche contrattuali o altro vi invitiamo a fissare un appuntamento presso le nostre agenzie.

--------------------------------------------------------------------------------------------------------------------------------------------

Chiamaci e fissa subito un appuntamento: o manda un'email a Tecnocasa - Immobili per l'Impresa è la divisione del Gruppo Tecnocasa specializzata nel settore commerciale, direzionale, logistico ed aziendale. Questa divisione è presente nel territorio di Firenze e provincia dal 2012 e supporta le agenzie Tecnocasa già presenti nel territorio da oltre 20 anni. Gli agenti immobiliari che fanno parte della struttura hanno una formazione tecnica specifica, così da poter offrire ai clienti un servizio altamente specializzato. All'interno dell'agenzia inoltre vengono utilizzati sistemi innovativi dedicati esclusivamente a tutti coloro i quali hanno necessità immobiliari legate al settore. Nello specifico l'agenzia tratta: negozi, magazzini, laboratori, capannoni, depositi oltre a cessioni aziendali quali attività di somministrazione, ricettive e buonuscita. Nel 2013 e nel 2015 l'agenzia affiliata Impresa Firenze s. a. s. risulta essere la migliore agenzia del Gruppo Tecnocasa - settore Immobili per l'Impresa, un traguardo raggiunto grazie all'ottimo servizio di consulenza offerto ai clienti che si sono affidati alla pluriennale esperienza dell'agenzia. Possiedi un immobile commerciale o gestisci un'attività commerciale? Chiamaci e fissa subito un appuntamento: 055.23. 44.354 Ogni agenzia ha un proprio titolare ed e' autonoma - Le presenti informazioni non costituiscono elemento contrattuale.

Mostra tutto

Nelle vicinanze

Trasporto pubblico Trasporto pubblico
stazione di Firenze Campo di Marte
stazione di Firenze Campo di Marte
890 m
stazione di Firenze Rovezzano
stazione di Firenze Rovezzano
2,4 Km
Unità
Unità
2,5 Km
Valfonda - Stazione Santa Maria Novella
Valfonda - Stazione Santa Maria Novella
2,6 Km
Alberti 03
Alberti 03
70 m
Ricariche auto elettriche Ricariche auto elettriche
Eneldrive (ex SILFI) Leon Battista Alberti
80 m
Eneldrive (ex SILFI) Ghirlandaio
360 m
Garage Florence Parking | EnelX
550 m
Eneldrive Lungarno Ferrucci
670 m
Garage Grand Hotel Mediterraneo | EnelX
700 m
Scuole Scuole
Istituto San Giuseppe
60 m
Scuola Don Bosco
310 m
Scuola Primaria Giotto
380 m
Università degli Studi di Firenze - Scuola di Psicologia - Plesso La Torretta
490 m
Istituti Paritari Cavour Pacinotti
530 m
Farmacia Farmacia
Farmacia Ninci
520 m
Farmacia comunale di Bellariva
540 m
Farmacia Bargioni
580 m
Antica Farmacia Morelli
760 m
Parafarmacia Borgo La Croce
790 m
Ospedali Ospedali
Villa Donatello
1,4 Km
Ospedale di Santa Maria Nuova
1,6 Km
Ospedale Piero Palagi
1,8 Km
CUR 112 TOSCANA
1,9 Km
Supermercati Supermercati
Coop.fi
390 m
Conad City
420 m
Coop
530 m
Lidl
950 m
Esselunga
1,0 Km
Negozi Negozi
Eli Krea
30 m
Sei di Cuori
70 m
Negozi
110 m
Outback Collection
170 m
Chiardiluna
190 m
Bar Bar
Bar L'Etrusco
90 m
Bar
310 m
Bacci
440 m
Bar Oberdan
460 m
Jazz Bistrot
460 m
Ristoranti Ristoranti
Cento Canti
140 m
La Forca S.r.l.
160 m
Giumella Gastronomia Vegana
200 m
FuoriPiazza
270 m
Il Vecchio e il Mare
300 m
Mostra tutto

Caratteristiche

Rif.:
61187553
Piano:
Terra di 3
Totale piani:
3
Condizionamento:
Autonomo
Ascensore:
No
Riscaldamento:
Autonomo
Mostra tutto
Prezzo Prezzo
€ 2.200 / mese
Spese annue Spese annue
€ 0

Altre caratteristiche

Classe Energetica

G
G
G
G
G
G
G
G
G
EP globale non rinnovabile:
175.00 kW h/m² anno
EP globale rinnovabile:
175.00 kW h/m² anno
EP invernale del fabbricato:
EP estiva del fabbricato:
Anno di costruzione:
1967
Riscaldamento:
Autonomo
Tipo impianto:
Ad aria
Tipo alimentazione:
Aria

Ti interessa visionare l'immobile?

Fissa un appuntamento  Fissa un appuntamento

Richiedi informazioni

Clicca su Leggi per aprire l'informativa
* Questi campi sono obbligatori
Affiliato
Impresa Firenze Srl
Viale Spartaco Lavagnini, 4A/4B/6A 50121 Firenze (FI)

Il nostro staff


  • Tommaso Birignani
    Affiliato

  • Gherardo Migliori
    Collaboratore

  • Muhamet Yalci
    Collaboratore
Viale Spartaco Lavagnini, 4A/4B/6A 50121 Firenze (FI)
Zona: Firenze Centro - Sud
Mostra su mappa
Orari: lunedì-venerdì 09:00-13:00; 15:30-20:00 - sabato 09:00-13:00
Affiliato
Impresa Firenze Srl
Viale Spartaco Lavagnini, 4A/4B/6A 50121 Firenze (FI)

2026 Tecnocasa Franchising S.p.A. - P. IVA 08365160152 - Via Monte Bianco 60/A 20089 Rozzano (MI). Ogni agenzia ha un proprio titolare ed è autonoma. Privacy policy | Policy utilizzo | Cookie policy